이 페이지의 내용을 보려면 최신 버전의 Adobe Flash Player가 필요합니다.

Adobe Flash Player 내려받기

이 페이지의 내용을 보려면 최신 버전의 Adobe Flash Player가 필요합니다.

Adobe Flash Player 내려받기

Home > 产品介绍 > 吸附塔
 
1. 袋式过滤除尘器
2. 脉动式除尘器
3. 旋风式除尘器
4. 防爆安全型除尘器
5. 灰尘回收除尘器
6. 磨麻除尘器
7. 真空除尘器
8. 多功能除尘器
9. 超小型除尘器
10. 环形高压除尘器
11. 中央清扫装置
12. 小型除臭除尘器
13. 中型移动式A/C TOWER
14. 吸附塔
15. 小型油雾净化器
16. 烟雾除尘器
17. 除雾器
18. 旋转涡流除尘器
19. 清洁除尘装置
20. 焊接烟尘除尘器
21. 携带式烟雾除尘器
22. 用于实验室的悬管式排烟罩
23. 用于工业的悬管式排烟罩
24. 灵活悬管式排烟罩
25. 用于工作的真空吸尘器
26. 用于工业的吸尘器
27. 大型吸尘器/特殊配置
28. 流粉体输送装备
29. 空气清洁器
30. 风机
 
 
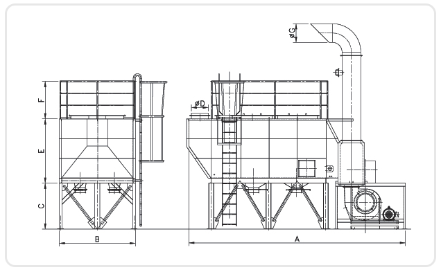
吸附塔
 
Absorption Tower
  吸附装置利用气体的分子或原子粘住固体表面的性质而把被污染的气体通过具有固体吸附剂的吸附塔而除臭、去除有害气体的除尘器。
 


  化学工厂/喷漆车间/塑料工厂
   
 
- 适合于大量除臭除尘器的。
- 因除尘器内部中央吸入气体而均匀保持较长的活性碳的寿命。
- 因有下部滑动式门而方便更换活性炭(维修方便)
- 把预过滤器安装于除尘器内部而可延长过滤器寿命。(选项)
- 专利厅注册专利(第10-0899733号)
   
 
   
 
Type AT-150 AT-200 AT-300 AT-400
POWER SOURCE 220V / 380V 3P 60Hz, 440V(Option), 50Hz(Option)
BLOWER (60/50HZ) Airflow(m³/min) 150 200 300 400
Constant Pressure(mmAq) 250 250 250 250
MOTOR(Kw) 11 15 22 30
MOTOR(Kw) 11 15 22 30
SIZE A (mm) 5,000 5,500 6,350 7,500
B (mm) 1,900 2,000 2,230 2,230
C (mm) 5,000 5,500 6,350 7,500
ØD (mm) Ø400 Ø500 Ø600 Ø700
E (mm) 1,700 1,750 1,750 2,000
F (mm) 1,100 1,100 1,100 1,100
ØG (mm) Ø450 Ø550 Ø650 Ø750
FILTER Activated carbon
Filtering Area(m²) 5.1 7.6 10 14
Quantity of the Activated Carbon(㎏) 1,300 1,900 2,600 3,500
  * The specification can change without a prior notice to improve the performance.
   
gobiz